Box / posti auto in vendita

Manfredonia, Via La Castellana - Centro
€ 55.000
Prezzo aggiornato
1 locale 1 locale
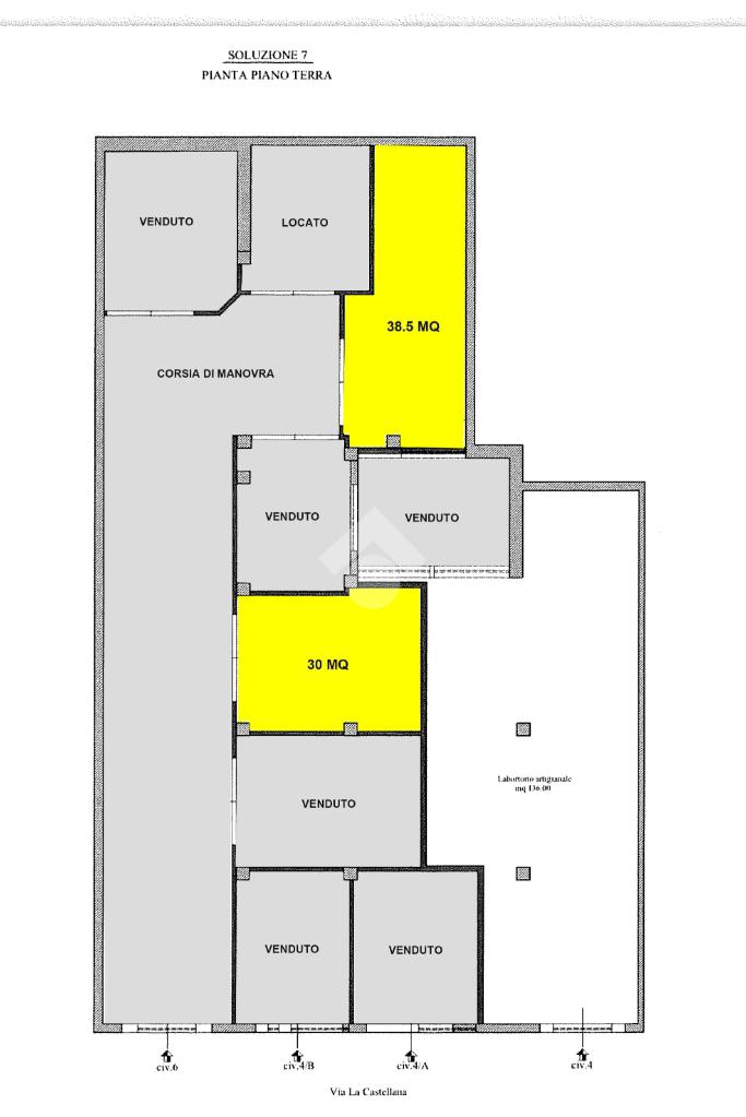
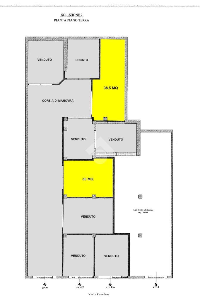
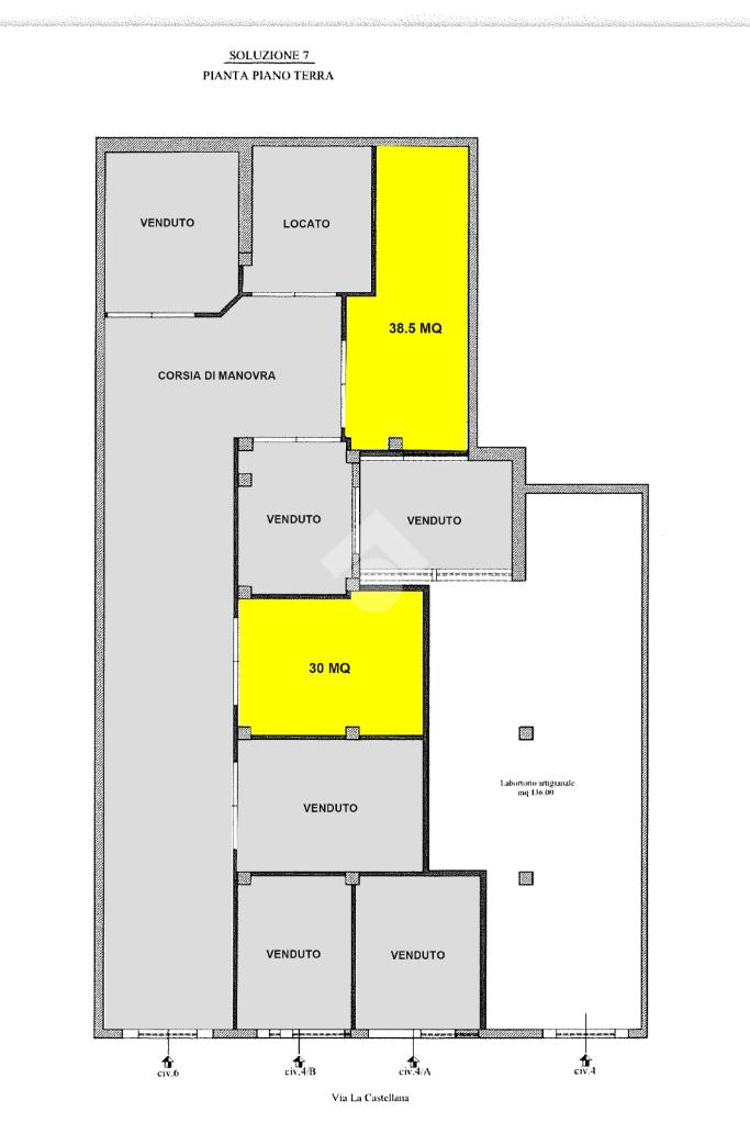
30 Mq 30 Mq

Box / posti auto in vendita

Manfredonia, Via La Castellana - Centro

Descrizione annuncio

VIA LA CASTELLANA: novità box auto di recente costruzione a piano strada.

UBICAZIONE E CONTESTO: in zona centrale disponiamo della vendita di quattro box a piano strada, tutti con impianto idrico e predisposizione bascula elettrica. Il riscaldamento è assente.

- 1 Box mq 30

- 1 Box mq 38,50

Tutte le informazioni, foto e planimetrie contenute nel presente annuncio pubblicitario non costituiscono elemento contrattuale: potrebbero non rispecchiare fedelmente lo stato di fatto dell'immobile e andranno verificate prima di formulare la proposta di acquisto o di locazione. L'agenzia immobiliare non risponde di eventuali discordanze.

Ci segua anche su facebook, cliccando 'mi piace' sulla pagina Gruppo Tecnocasa Manfredonia Centro o su Instagram alla pagina manfredonia_tecnocasa_centro.
Scarichi gratuitamente anche l'App Tecnocasa sul suo smartphone e sarà sempre aggiornato sulle nostre proposte di vendita e locazione.

Nel caso in cui avesse bisogno di una consulenza reddituale per accedere ad una richiesta di mutuo possiamo esserle d'aiuto anche su questo poiché è possibile, previo appuntamento, direttamente nella nostra agenzia, incontrare un Collaboratore di Kiron Partner SpA la società di mediazione creditizia del Gruppo Tecnocasa.

LA CONSULENZA E' GRATUITA.

Mostra tutto

Nelle vicinanze

Trasporto pubblico Trasporto pubblico
Manfredonia
Manfredonia
870 m
Siponto
Siponto
2,3 Km
Marino Bus Stop
Marino Bus Stop
490 m
Scuole Scuole
Istituto Magistrale A. G. Roncalli
350 m
Scuola Elementare Croce
350 m
Liceo Scientifico Galileo Galilei
490 m
I.T.C.S. Giuseppe Toniolo
640 m
Istituto Comprensivo "Perotto - Orsini"
680 m
Farmacia Farmacia
Moderna
290 m
Querques dr.ssa Maria Pia
520 m
Serratì dr. Eugenio
540 m
Manzo dr. Michele
930 m
Prencipe dr. Raffaele
1,3 Km
Ospedali Ospedali
Ospedale San Camillo De Lellis
670 m
Pronto Soccordo Ospedale San Camillo De Lellis
680 m
Supermercati Supermercati
EuroSpin
560 m
Supermercati
590 m
Sigma
670 m
DiMeglio
750 m
GranRisparmio
1,1 Km
Negozi Negozi
Quitadamo
70 m
S. Matteo
180 m
Negozi
400 m
Antico Sapore del Pane
520 m
il Forno
750 m
Bar Bar
Bar Impero
440 m
flamingo
890 m
Ristoranti Ristoranti
Pizzeria del Largo
290 m
Il Baracchio
430 m
Calafuria
510 m
Trattoria Pizzeria Regina
2,5 Km
Ristorante Crysalis
2,8 Km
Mostra tutto

Caratteristiche

Rif.:
60905248
Piano:
Terra di 2
Totale piani:
2
Box:
1
Arredamento:
Assente
Condizionamento:
Assente
Mostra tutto
Prezzo Prezzo
€ 55.000
Rata mutuo Rata mutuo
€ 260 / mese
Spese annue Spese annue
€ 0
Proponi il tuo prezzoProponi il tuo prezzo

Classe Energetica

G
G
G
G
G
G
G
G
G
EP invernale del fabbricato:
EP estiva del fabbricato:
Anno di costruzione:
2024
Riscaldamento:
Autonomo
Tipo impianto:
Ad aria
Tipo alimentazione:
Aria

Prezzo ridotto di €1 (45%%)

Ti interessa visionare l'immobile?

Fissa un appuntamento  Fissa un appuntamento

Richiedi informazioni

Clicca su Leggi per aprire l'informativa
* Questi campi sono obbligatori

Calcola il tuo mutuo

Semplice e senza impegno
Anticipo

( % )
Mutuo

( % )

pochi semplici passi

inserisci i tuoi dati
Questionario completato
Grazie per aver richiesto un appuntamento senza impegno con un nostro Consulente del Credito e Assicurativo.

Hai inserito correttamente tutti i dati necessari e a breve riceverai una e-mail con un link da convalidare per inviare i tuoi dati.
Affiliato
Studio San Giorgio Srl
Corso Manfredi, 165 71043 Manfredonia (FG)

Il nostro staff


  • Patrizia Pagano
    Coordinatrice

  • Cosimo Di Tullo
    Collaboratore

  • Davide Gramazio
    Responsabile

  • Michele Muscettola
    Collaboratore

  • Benito Mottola
    Affiliato
Corso Manfredi, 165 71043 Manfredonia (FG)
Zona: Manfredonia - Centro - Scaloria
Mostra su mappa
Orari: da lunedì a venerdì 09,00 - 13,00 /16,00 - 20,30 sabato 09,00 - 13,00 domenica su appuntamento
Affiliato
Studio San Giorgio Srl
Corso Manfredi, 165 71043 Manfredonia (FG)

2025 Tecnocasa Franchising S.p.A. - P. IVA 08365160152 - Via Monte Bianco 60/A 20089 Rozzano (MI). Ogni agenzia ha un proprio titolare ed è autonoma. Privacy policy | Policy utilizzo | Cookie policy